This page features recent Carthay Square restoration projects that were completed in coordination with the Carthay HPOZ board.
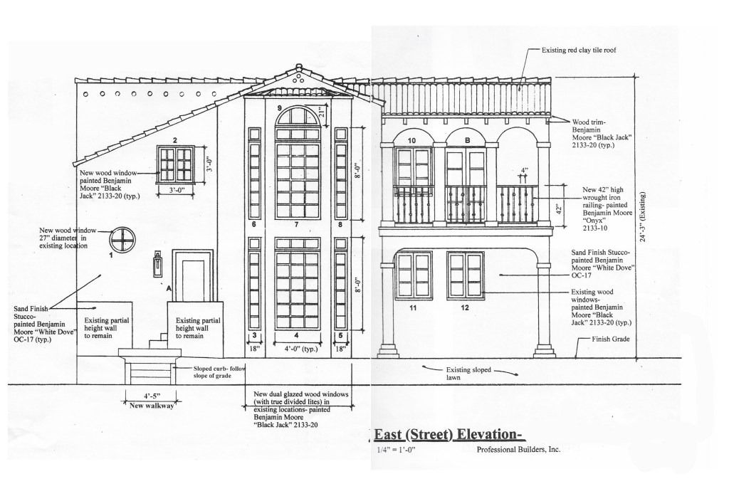
Hayworth S. Charles Lee Duplex

The Architect S. Charles Lee became famous in California for his designs of over 400 movie theaters in California including the Los Angeles Theatre in downtown L.A., the Fox Wilshire, (now known as the Saban Theater) in Beverly Hills, and the Bruin Theatre in Westwood. Between the years 1924 to 1929 Lee designed sixteen duplexes in Carthay Square where he also lived. This duplex is one of them. To restore one of S. Charles Lee’s projects takes extra skill and care.
In this restoration the designer replaced the two-story front-facing glass façade with new glazed wood windows that are true-divided (divided into separate panes of glass.) The presentation made to the HPOZ Committee was clear and focused on the issues of preservation within the HPOZ, and the work conformed to the Preservation Plan. Attention was paid to the wrought iron work at the second-floor balcony as well as to the concrete entry walk.
The owner doing the restoration took care in matching the context of the neighborhood as well as in referring to the original design of the building. His builder/designer even consulted the UCLA archive of plans and books on S. Charles Lee to look for the original drawings of this duplex.
Contractor: Professional Builders, 5315 Laurel Canyon Blvd., Suite 102, Los Angeles, CA 91607. (866) 416-9040 info@probuildersus.com
Hi Point Spanish Eclectic
In this restoration, the owner paid attention to details like restoring the wrought iron fixtures and the historic scoring pattern on the concrete porch. The house is in the Spanish Eclectic style and was built in 1926. The survey designated it as an “Altered Contributor” because it had jalousie windows dating from the 1940’s which were not original to the house. The owner came before the HPOZ Committee to ensure that the project would meet the guidelines of the Preservation Plan.
The historic house had many problems. Dry rot had destroyed a good part of the framing of the front of the house and floor including the framing around the arched picture window. The problems were addressed while keeping the home’s historic features. Doing a job like this one requires patience and special skills.
Below are some of the professionals who brought expertise to this restoration:
Julie Hart & Assoc., Architectural Design
(310) 450-5443
Jahdesign310@aol.com
Casa Terra Design/Project Management and Design
Michelle Maisterra Oyler
310-994-5499
michelleoyler@me.com
Andrew K. Chan, Structural Engineer
(626) 215-7509
achanla@aol.com
Kevin Harrington/Harrington Construction
(310) 962-0009
devinharto@yahoo.com
A&J Custom Doors and Windows, Inc.
Julio Castro
(818)775-1646
ajcustomdoors@yahoo.com
Cirocco Plastering
Joe Cirocco
(805) 522-0145
joecirroco@yahoo.com
Palisades Roofing
Jim De Varennes
(310) 829-3060
jim@paliroof.com




